
● 采用下吸盤式不停頓送紙方式。
● 氣動式側推擋板預先對紙堆推齊整理。
● 采用真空吸附方式將紙板送入壓紙輥,不易刮花印刷表面。

● 左右各一套側定位推規,保證紙板側定位精準。
● 輸紙步距調整采用先進的不停機調節。
● 前擋前后位置可根據咬口尺寸作微調。

進口高精度間歇分割器,長期使用也能保證較高的定位精度。

● 采用三框清廢機構。
● 中間清廢板的安裝采用中心線快速定位安裝方式,使操作人員可以快速安裝清廢板,提高換板效率。

卷簾式輔收紙架,可實現不停機收紙,收紙雙向輔助吹風,手動取樣機構,操作方便。

本機采用德國穆勒、日本歐姆龍電器元件,操作簡易,保養維護方便。

德國BECKER無油式吹吸兩用真空泵。

整機采用集中自動供油系統,確保傳動部位不缺油。
| 輸紙部 | MHC-1300EFC/1350EFC/1500EFC/1650EFC |
| 01、高精密下吸盤送紙飛達,底部飛達不停頓式的吸嘴,采用真空吸附方式將紙板送入壓紙輥,不易刮花印刷表面 | 〇 |
| 02、電動側推擋板及氣動齊紙裝置(右側) | 〇 |
| 03、電動控制送紙輥 | 〇 |
| 04、壓紙片及前擋規,雙張檢測裝置反應準確 | 〇 |
| 05、前擋勾板調節裝置,紙板彎曲上下可調整 | 〇 |
| 06、輸紙步距不停機調節裝置 | 〇 |
| 07、前檔板前后位置微調裝置,可根據咬口尺寸微調 | 〇 |
| 08、左右側定位推規,確保紙板側定位精準 | 〇 |
| 09、德國貝克品牌吹吸兩用真空泵 | 〇 |
| 模切部 | |
| 01、整機鑄件采用QT-700-2球墨鑄鐵 | 〇 |
| 02、進口蝸輪,蝸桿與 40cr 曲軸 | 〇 |
| 03、整套進口陽極處理鋁合金牙排及定位結構,每條牙排采用可調式牙排結構 | 〇 |
| 04、進口主傳動鏈條 | 〇 |
| 05、進口間歇分割器 | 〇 |
| 06、進口同步帶、帶輪傳動 | 〇 |
| 07、主傳動進口氣動離合器剎車裝置 | 〇 |
| 08、壓力自動調節裝置,可通過PLC觸摸屏按鍵實現壓力的準確控制 | 〇 |
| 09、模切壓力采用變形測量器直接精確測量,并在人機界面上顯示 | 〇 |
| 10、模切底板和刀模板回轉裝置 | 〇 |
| 11、模切刀版與模切板框的聯接采用抓釘螺母和螺絲形式,裝入時采用中央定位系統,換版快捷、準確 | 〇 |
| 12、模切板框和模切下墊板采用日本SMC氣量調節器鎖定,避免上板框鎖定安裝不到位的情況,有效避免人為因素操作造成的損失 | 〇 |
| 13、日本SMC氣壓檢測裝置,氣壓過低報警提示 | 〇 |
| 14、配備儲氣罐,確保整機氣壓穩定 | 〇 |
| 15、整機采用集中自動供油系統,確保傳動部位不缺油 | 〇 |
| 清廢部 | |
| 01、上清廢傳動機構 | 〇 |
| 02、上清廢框抬起裝置,可任意選擇是否使用清廢功能 | 〇 |
| 03、中間清廢陰模傳動機構 | 〇 |
| 04、下清廢傳動機構 | 〇 |
| 05、中間清廢板的安裝采用中心線快速定位安裝方式,使操作人員可以快速安裝清廢板,提高換板效率 | 〇 |
| 收紙部 | |
| 01、卷簾式輔收紙架,可實現不停機收紙 | 〇 |
| 02、高堆收紙臺升降裝置,收紙結構可整堆紙拉出機外(高堆收紙專用) | 〇 |
| 03、收紙齊紙裝置 | 〇 |
| 04、上下極限開關光電檢測,防止收紙臺堆紙過高和紙張上卷 | 〇 |
| 05、彈簧鏈條調節裝置,調節彈簧鏈條漲緊后,可減少牙排轉向的慣量沖擊,并保持鏈條的均衡漲緊度 | 〇 |
| 電氣部 | |
| 01、自主研發的PLC控制系統 | 〇 |
| 02、模切部采用10.4英寸觸摸顯示屏 | 〇 |
| 03、整機采用德國Moeller的繼電器、交流接觸器、空氣開關和按鈕,保證了電器部分的穩定和可靠 | 〇 |
| 04、整機采用日本歐姆龍Omron的光電開關,光纖,編碼器和傳感器,確保電氣檢測各部位動作的準確和穩定 | 〇 |
注:此配置單只供參考,正式配置單以合同為準。標配:〇;選配:△
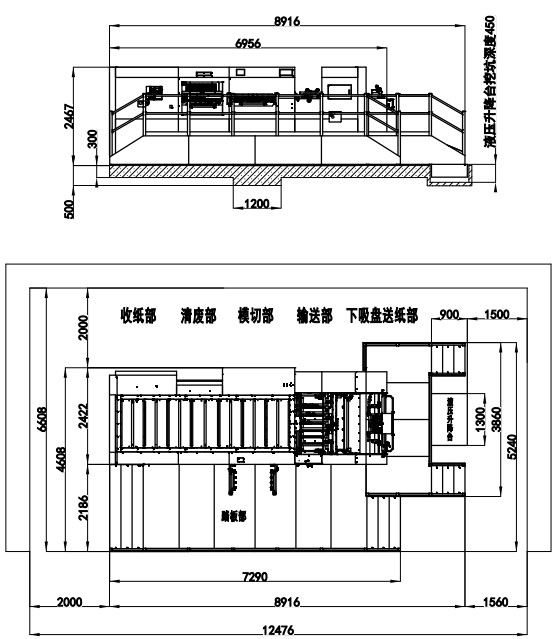
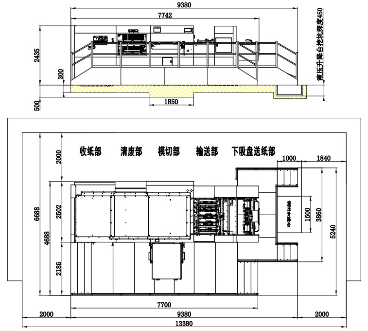
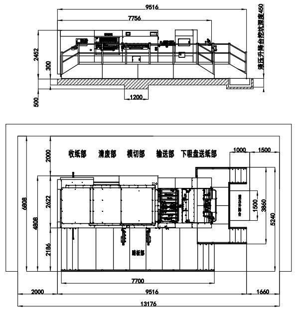
| 型號 | MHC-1300EFC | MHC-1350EFC | MHC-1500EFC | MHC-1650EFC |
| 最大紙張幅面 | 1290×940mm | 1350×1100mm | 1500×1100mm | 1650×1200mm |
| 最小紙張幅面 | 470×450mm | 470×450mm | 470×450mm | 550×500mm |
| 最大模切幅面 | 1280×920mm | 1330×1080mm | 1480×1080mm | 1620×1180mm |
| 最小廢邊寬度 | 10-18mm | 10-18mm | 10-18mm | 10-18mm |
| 叼口空白 | 9-17mm | 9-17mm | 9-17mm | 9-17mm |
| 刀線高 | 23.8mm | 23.8mm | 23.8mm | 23.8mm |
| 板框內版尺寸 | 1310×950mm | 1390×1120mm | 1510×1120mm | 1682×1220mm |
| 適用紙張范圍 | ≤8.5mm瓦楞紙, E、B、C、A 和 AB 瓦楞紙 | ≤8.5mm瓦楞紙, E、B、C、A 和 AB 瓦楞紙 | ≤8.5mm瓦楞紙, E、B、C、A 和 AB 瓦楞紙 | ≤8.5mm瓦楞紙, E、B、C、A 和 AB 瓦楞紙 |
| 模切精度 | ≤±0.15mm | ≤±0.15mm | ≤±0.15mm | ≤±0.2mm |
| 最大工作壓力 | 400T | 400T | 400T | 400T |
| 最大工作速度 | 5500s/h | 5500s/h | 5500s/h | 4500s/h |
| 最大收紙堆高(含托板) | 1400mm | 1400mm | 1400mm | 1400mm |
| 主電機功率 | 11kw | 15kw | 15kw | 18.5kw |
| 滿載功率 | 21kw | 26kw | 26kw | 30kw |
| 氣源要求 | 壓力: 0.6-0.7MPa,流量: ≥0.37m3/min | 壓力: 0.6-0.7MPa,流量: ≥0.37m3/min | 壓力: 0.6-0.7MPa,流量: ≥0.37m3/min | 壓力: 0.6-0.7MPa,流量: ≥0.75m3/min |
| 機器總重 | 21T | 23T | 24T | 26T |
| 整機尺寸 | 8916×5240×2467mm | 9380×5240×2435mm | 9516×5240×2452mm | 9869×5580×2582mm |



