
Feeder lifting device(Tiptronic function)

Three paper feeding modes:
● Single-sheet paper feeding (suitable for 4-8.5MM corrugated cardboard)
● Double-sheet overlapping paper feeding (suitable for 2-4MM corrugated cardboard)
● Multiple-sheet overlapping paper feeding (suitable for paper with a thickness of ≤2MM)

● Die-cutting base plate and knife template rotary device.
● The connection between the die cutting plate and the die cutting frame adopts the form of grasping snail and screws, adopt central positioning system, which is fast and accurate.
● The die-cutting plate frame and the die-cutting steel backing plate are locked by the Japanese SMC gas volume regulator to avoid the situation that the locking and installation of the upper frame is not in place, and effectively avoid the loss caused by the operation of human factors.

● Imported synchronous belt and pulley drive.
● Imported intermittent splitter.
● Imported torque limiting overload protector.

● Upper waste transmission mechanism.
● Users can choose whether to use the stripping function by lifting upper stripping frame.
● Pull-out drive mechanism with quick locking function for intermediate negative stripping frame.
● Lower stripping transmission mechanism.
● The stripping plate is installed using a centerline quick-positioning method, enabling operators to mount it rapidly and improve changeover efficiency.

The gripper stripping device can automatically convey gripper waste edges out of the machine and achieve four-frame stripping.

The automatic batch delivery lifting table device can automatically set the number of stacked sheets, and cooperate with the conveyor belt to convey the paper outside the machine. The paper surface is not easily scratched or abraded during the paper stacking process (Special for batch delivery, optional)

High pile stacking table adopts lifting device, paper delivery structure can pull the whole pile of paper out of the machine.Main delivery device and auto non-stop roll-up curtain type auxiliary collecting device switch automatically without any operation, significantly enhancing productivity.

Blow-suction dual-purpose vacuum pump of German Becker brand.

The whole machine adopts a centralized automatic oil supply system to ensure that the transmission parts are not short of oil.
| Conveying Unit | MHK-1300EC/1350EC/1500EC/1650EC |
| 01. Feeder lifting device(Tiptronic function) | 〇 |
| 02. Fish-scale powerful paper suction feeder head with 4 suction and 4 delivery. The suction head can be adjust to various suction angles according to the deformation of the paper | 〇 |
| 03. Adjustable suction blower, suction head and air separation valve processed with ultra-hard alloy | 〇 |
| 04. Triple feeder head anti-collision device | 〇 |
| 05. Horizontal paper separation blower | 〇 |
| 06. Electrical left/right fine-tuning device for the main feed pile | 〇 |
| 07. The pre-stacking device is equipped with rails so that the operator can accurately and conveniently send the stack of paper into the feeder | 〇 |
| 08. The paper alignment adjustment device can manually adjust the distance before the paper reaches the gauge without stopping the machine | 〇 |
| 09. Push-pull dual-purpose side gauges, one set for the operation side and one set for the transmission side. Side gauges can be adjusted between push-pull gauges to meet different paper requirements | 〇 |
| 10. Photoelectric detection of side gauge and front gauge | 〇 |
| 11. Servo motor conveying and positioning device | 〇 |
| 12. Three paper feeding modes: 1)Single-sheet paper feeding (suitable for 4-8.5MM corrugated cardboard) 2)Double-sheet overlapping paper feeding (suitable for 2-4MM corrugated cardboard) 3)Multiple-sheet overlapping paper feeding (suitable for paper with a thickness of ≤2MM) | 〇 |
| 13. Electromechanical double sheet detector | 〇 |
| 14. Imported paper feeding belt and stainless steel transfer plate | 〇 |
| 15. Pneumatic lifting device for paper feeding frame | 〇 |
| 16. PLC and electronic cam control the timing of the whole machine | 〇 |
| 17. Blow-suction dual-purpose vacuum pump of German Becker brand | 〇 |
| Die-cutting Unit | |
| 01. The entire machine casting is made of QT-700-2 nodular cast iron | 〇 |
| 02. Imported worm gear, worm gear and 40cr crankshaft | 〇 |
| 03. A complete set of imported anodized aluminum alloy gripper bars and positioning structure, fine steel gripper teeth and supporting gripper plates. The gripper bars adopt an adjustable gripper bar structure | 〇 |
| 04. Imported main drive chain | 〇 |
| 05. Imported intermittent splitter | 〇 |
| 06. Imported synchronous belt and pulley drive | 〇 |
| 07. Imported torque limiting overload protector | 〇 |
| 08. Imported pneumatic clutch brake device | 〇 |
| 09. Pressure regulating device, which can realize accurate control of pressure through PLC touch screen buttons | 〇 |
| 10. Die-cutting base plate and die mould rotary device | 〇 |
| 11. The connection between the die cutting plate and the chase adopts the form of grasping snail and screws, adopt central positioning system, which is fast and accurate | 〇 |
| 12. The die-cutting chase and the lower mat are locked by the Japan SMC gas regulator, which can prevent improper locking of the upper frame caused by human error during installation | 〇 |
| 13. Japan SMC air pressure detection device, low air pressure alarm | 〇 |
| 14. Equipped with an air storage tank to ensure the stability of the air pressure of the whole machine | 〇 |
| 15. The whole machine adopts a centralized automatic oil supply system to ensure that the transmission parts are not short of oil | 〇 |
| Stripping Unit(Three frames and four sides) | |
| 01. Upper waste transmission mechanism | 〇 |
| 02. Users can choose whether to use the stripping function by lifting upper stripping frame | 〇 |
| 03. Intermediate negative stripping transmission mechanism | 〇 |
| 04. Lower stripping transmission mechanism | 〇 |
| 05. The installation of the middle stripping board adopts the center line quick positioning installation method, enabling the operators to install the stripping board quickly and improving the plate changing efficiency | 〇 |
| 06. The gripper stripping device can automatically convey gripper waste edges out of the machine and, with the stripping slideway, they can automatically slide into the main stripping channel | 〇 |
| Delivery Unit | |
| 01. Roll-up curtain type auxiliary paper delivery device, can realize non-stop paper delivery | 〇 |
| 02. High pile stacking table adopts lifting device, paper delivery structure can pull the whole pile of paper out of the machine.(Special for high pile stacking delivery) | 〇 |
| 03. Paper delivery alignment device | 〇 |
| 04. Photoelectric detection of upper and lower limit switches can effectively prevent the paper stacking table from excessive paper pile stacking and paper curling up | 〇 |
| 05. Spring chain adjustment device: Adjusting the tension of spring chain can reduce the inertia impact during the steerings of the gripper bar, and maintain the balanced tension of the chain | 〇 |
| 06. The non-stop rolling curtain auxiliary paper delivery device and the automatic batch delivery lifting table device can be used alternately. The automatic batch delivery lifting table device can automatically set the number of stacked sheets, and cooperate with the conveyor belt to convey the paper outside the machine (Special for batch delivery, optional) | △ |
| 07. The automatic batch delivery lifting table uses conveyor belts for paper delivery. The paper surface is not easily scratched or abraded during the paper stacking process (Special for batch delivery, optional) | △ |
| 08. The external paper delivery rack and the batch delivery lifting table can also be moved aside to switch to the high pile stacking delivery unit | 〇 |
| Electrical unit | |
| 01. The die-cutting unit adopts 10.4-inch Germany Siemens touch screens | 〇 |
| 02. The machine adopts Germany Moeller brand relays, AC contactors, air switches and buttons, to ensure the stability and reliability of electrical parts | 〇 |
| 03. The machine adopts Japanese Omron brand photoelectric switch, optical fiber, encoder and sensor, to ensure the accuracy and stability of electrical detection of each part of the action | 〇 |
Note: This allocation sheet is for reference only, the formal allocation sheet is subject to the contract. Standard configuration: 〇; Optional: △
| Model | MHK-1300EC | MHK-1350EC | MHK-1500EC | MHK-1650EC |
| Max. Sheet Size | 1290×940mm | 1350×1100mm | 1500×1100mm | 1650×1200mm |
| Min. Sheet Size | 470×450mm | 470×450mm | 470×450mm | 550×500mm |
| Max. Cutting Size | 1280×920mm | 1330×1080mm | 1480×1080mm | 1620×1180mm |
| Min. Gripper Margin | 9-17mm | 9-17mm | 9-17mm | 9-17mm |
| Min. Width of Cuts | 10-18mm | 10-18mm | 10-18mm | 10-18mm |
| Cutting Rule Height | 23.8mm | 23.8mm | 23.8mm | 23.8mm |
| Inner Chase Size | 1310×950mm | 1390×1120mm | 1510×1120mm | 1682×1220mm |
| Stock Range | Cardboard:≥200g/m2;Corrugated board: ≤8.5mm, E, B, C, A and AB corrugated pape | Cardboard:≥200g/m2;Corrugated board: ≤8.5mm, E, B, C, A and AB corrugated paper | Cardboard:≥250g/m2;Corrugated board: ≤8.5mm, E, B, C, A and AB corrugated paper | Cardboard:≥350g/m2;Corrugated board: ≤8.5mm, E, B, C, A and AB corrugated paper |
| Die Cutting Accuracy | ≤±0.15mm | ≤±0.15mm | ≤±0.15mm | ≤±0.2mm |
| Max. Die Cutting Force | 400T | 400T | 400T | 400T |
| Max. Working Speed | 6000s/h | 6000s/h | 6000s/h | 5000s/h |
| Max. Feeder Pile Height | 1800mm(With pallet) | 1800mm(With pallet) | 1800mm(With pallet) | 1800mm(With pallet) |
| Max. Delivery Pile Height | 1600mm(With pallet) | 1600mm(With pallet) | 1600mm(With pallet) | 1600mm(With pallet) |
| Main Motor Wattage | 11KW | 15KW | 15KW | 18.5KW |
| Full Load Wattage | 19KW | 24KW | 24KW | 28KW |
| Air Requirement | Pressure: 0.6~0.7Mpa, Flow: ≥0.75m3/min | Pressure: 0.6~0.7Mpa, Flow: ≥0.75m3/min | Pressure: 0.6-0.7Mpa, Flow: ≥0.75m3/min | Pressure: 0.6-0.7Mpa, Flow: ≥0.75m3/min |
| Net Weight of Machine | 21T | 23T | 24T | 26T |
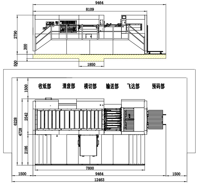
| Machine Dimensions(Stacking Delivery) | 9551×4648×2767mm(L×W×H) (L: paper prepared track included, W: platform included) | 9464x4728x2790mm(L×W×H) (L: paper prepared track included, W: platform included) | 9958x4848x2803mm(L×W×H) (L: paper prepared track included, W: platform included) | 10690x5296x2932mm(L×W×H) (L: paper prepared track included, W: platform included) |
| Machine Dimensions(Batch Delivery Conveying) | 11305×4648×2767mm(L×W×H) (L: paper prepared track included, W: platform included) | 12055x5240x2803mm(L×W×H) (L: paper prepared track included, W: platform included) | 12055x5240x2803mm(L×W×H) (L: paper prepared track included, W: platform included) | 12200x5580x2932mm(L×W×H) (L: paper prepared track included, W: platform included) |



